Liitu Arteri toreda kogukonnaga!
Üürile anda 29,45 m² jagatud teenustega büroopind Arteri kvartali 6. korrusel. Kasuta võimalust liituda Arteri toreda kogukonnaga!
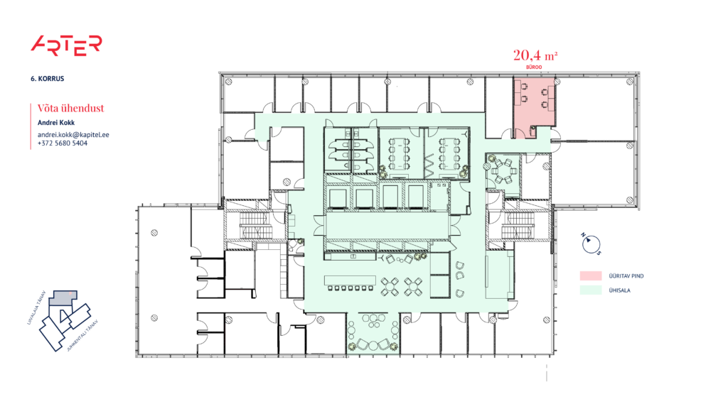
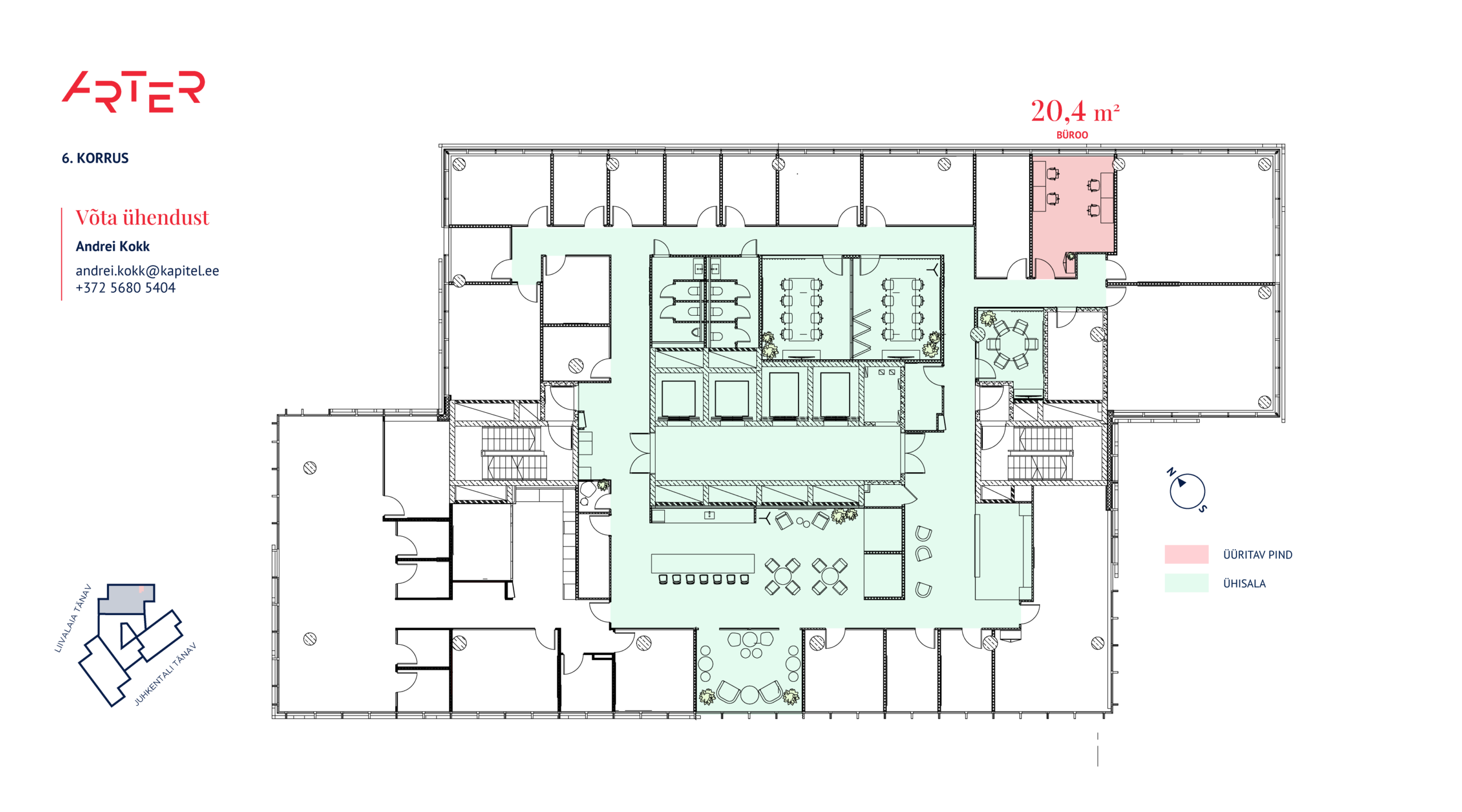
NB! 20,4 m² pind on valmis sissekolimiseks.
Küte ja ventilatsioon: keskküte, kombineeritud küte, maaküte
Köök: köök, köögimööbel
Side ja turvalisus: Internet, valvur, videovalve
Lisainfo: elekter, eraldi sissepääs, lift, mööbli võimalus
Sanruum: ventilatsioon, tsentraalne vesi
Ümbrus: ümbruses ärihooned, linnas, teed heas seisukorras
Suurepärase asukoha ja esmaklassilise töökeskkonnaga büroopind Tallinna südalinnas, kus on eriline tähelepanu õhukvaliteedil, looduslikel materjalidel ja rekreatsioonil. Kasuta võimalust liituda Arteri toreda kogukonnaga!
Üüripind koosneb üürniku kasutuses olevast pinnast (privaatne osa) suurusega 20,4 m² (plaanil roosaga ala) ja üürniku osast ühiskasutatavatest pindadest (lisanduv arvestuslik osa 6. korruse koridoridest, tualettruumidest, kohviruumist, koosoleku-ruumidest, side-/IT-ruumist jne plaanil rohelisega ala) suurusega 9,05 m², s.o kogupind on 29,45 m². Ruumi on võimalik paigutada 4–6 töökohta.
Üüritingimused:
Üürihind: 36,90 eurot/m² kuus. Iga-aastane üüri indekseerimine alates teisest aastast vastavalt Eesti tarbijahinnaindeksile (THI), kuid mitte vähem kui 2% ja mitte rohkem kui 5% aastas.
Üürile lisanduvad käibemaks ja kõrvalkulud (fikseeritud määr 6 €/m²). Kõrvalkulud (internet, vesi, elekter, küte, hooldus, koristus jms) indekseeritakse vastavalt Eesti tarbijahinnaindeksile (THI), kuid mitte vähem kui 2% ja mitte rohkem kui 5% aastas.
Üürihinna sees on ühiskasutatava köögi-puhkealade, tualettruumide ja koosolekuruumide (tasuta 2 tundi nädalas) kasutamise õigus.
Arteri kvartali külalised saavad parkida majasiseses korrusparklas, ilmastikukindla ligipääsuga aatriumisse ja büroodesse. Parklasse sissesõit on Veski tänavalt. Arteri kvartali külalised saavad parkida korrusparkla esimeses osas, kus on kohti 31 autole.
Asukoht:
Arteri kvartal koosneb 28-, 15- ja 9-korruselisest hoonest ja neid ühendavast aatriumist.
Arteri kvartal asub Tallinna südalinnas Liivalaia ja Juhkentali tänava nurgal, pakkudes lummavaid vaateid nii Tallinna südalinnale, vanalinnale kui ka merele. Uus Veski tänav kvartali taga ja uuendatud Imanta tänavalõik tagavad turvalise ning rahuliku liiklemise kvartali ümbruses. Kvartal ühendab Tallinna hinnatuimad büroopinnad, toitlustuse, heaoluteenused ja majutusvõimalused.
Arteri kvartalil on hea ühendus erinevate linnaosadega nii jalgsi, ühistranspordi, jalgratta kui ka autoga – bussipeatus on 100 m, bussijaam 900 m, raudteejaam ca 2,9 km, trammipeatus ca 550 m kaugusel, lennujaama ja sadamasse on ca 3,2 km.
Kaasaegne, terviklik ja kõikide mugavustega töökeskkond linna südames:
- esmaklassiline sisekliima, sealhulgas õhuniisutussüsteem
- ruumide kaupa reguleeritav kütte- ja jahutustingimused, hoone kütte- ja jahutusvajaduse katavad suures osas energiavaiad ja kaugjahutus
- ruumide väga head valgustustingimused
- tõstetud põrandad tagavad paindlikkuse ruumiplaneeringu- ja töökohtade asukoha muutmiseks
- vähemalt kolmemeetrine korruse puhaskõrgus, ruumiti ka täiskõrguses klaasfassaad
- integreeritud valve- ja läbipääsusüsteemid
- kaks restorani hoone 1. korrusel
- lillesalong ja raamatupood hoone 1. korrusel
- lugemisnurk ja puhkealad 1. korrusel
- kvartali töötajatele on loodud spordiklubi 20-meetrise ujumisbasseini, saunade ja massaažibasseinidega
- haljastatud ja möbleeritud suveterrass korrusel
- silma- ja tervisekliinik 2. korrusel
- juuksurisalong 5. korrusel
- 58 korteriga korterhotell
- jalgrataste siseparkla koos rataste pesu- ja hooldusala ning riietus- ja duširuumidega
- elektriautode laadijad
- DPD ja SmartPosti pakiautomaadid
- kvartali ankurüürnik on Swedbank
- hoonete taga kunagise Härjapea jõesängi alal on kõigile linnaelanikele avatud park
- Arteri kvartal on esimene büroohoonekompleks Eestis, millele on väljastatud rahvusvaheline BREEAM New Construction Excellent jätkusuutlikkuse sertifikaat. Sertifikaat hindab terviklikult hoone energiatõhusust, keskkonna- ja kasutajasõbralikkust ning kestlikkust hoone elukaare igas tsüklis.
Kapitel AS on 25 aasta jooksul arendanud ja juhtinud kokku üle 500 000 m² mahus kinnisvaraprojekte. Praegu on ettevõtte portfellis kuus büroohoonet, mis on igapäevaseks kvaliteetseks töökeskkonnaks tuhandetele inimestele. Majaomanikuna on Kapitel üürnikele igapäevaseks partneriks.
Küsi lisa ja tule tutvuma kaasaegse ja innovaatilise kvartaliga!


























